Casa semindipendente in vendita

Rivalta Di Torino, Via Turati - Gerbole
€ 249.000
8 locali 8 locali
200 Mq 200 Mq
2 bagni 2 bagni

Casa semindipendente in vendita

Rivalta Di Torino, Via Turati - Gerbole

Descrizione annuncio

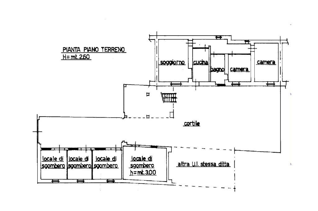
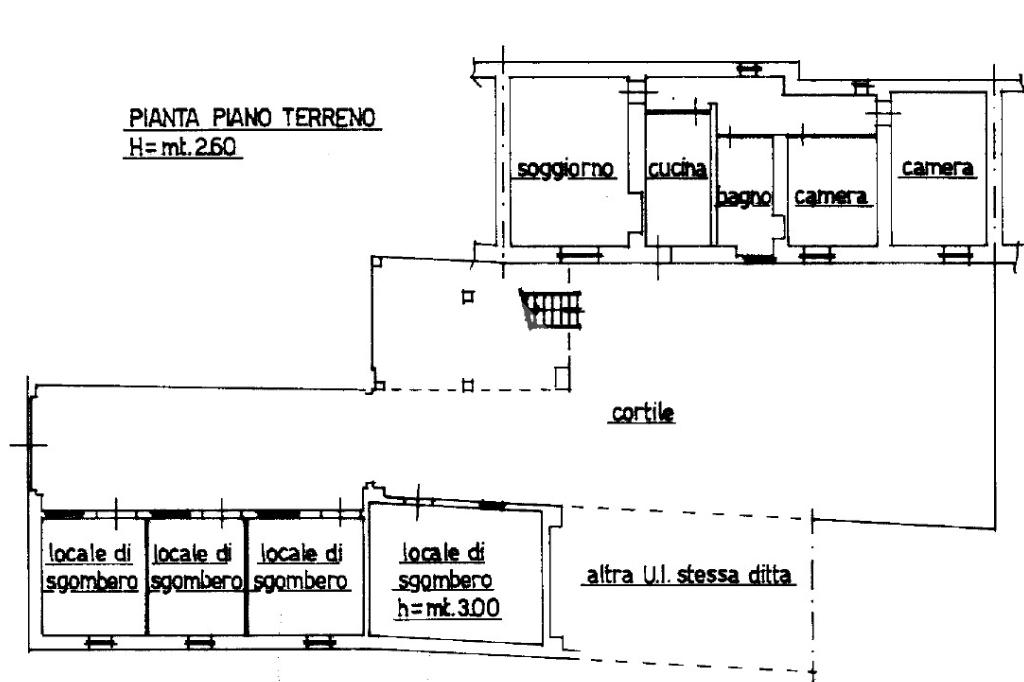
Nella frazione di Gerbole di Rivalta, in contesto tranquillo e di soli rustici, casa bifamiliare semi indipendente parzialmente ristrutturata.
Al piano terra, il primo appartamento: il corridoio conduce a tutte le stanze della casa, la zona giorno con la sala da pranzo e la cucina e la zona notte con le due camere da letto e il bagno finestrato con vasca. L'alloggio è dotato di stufa a pellet.
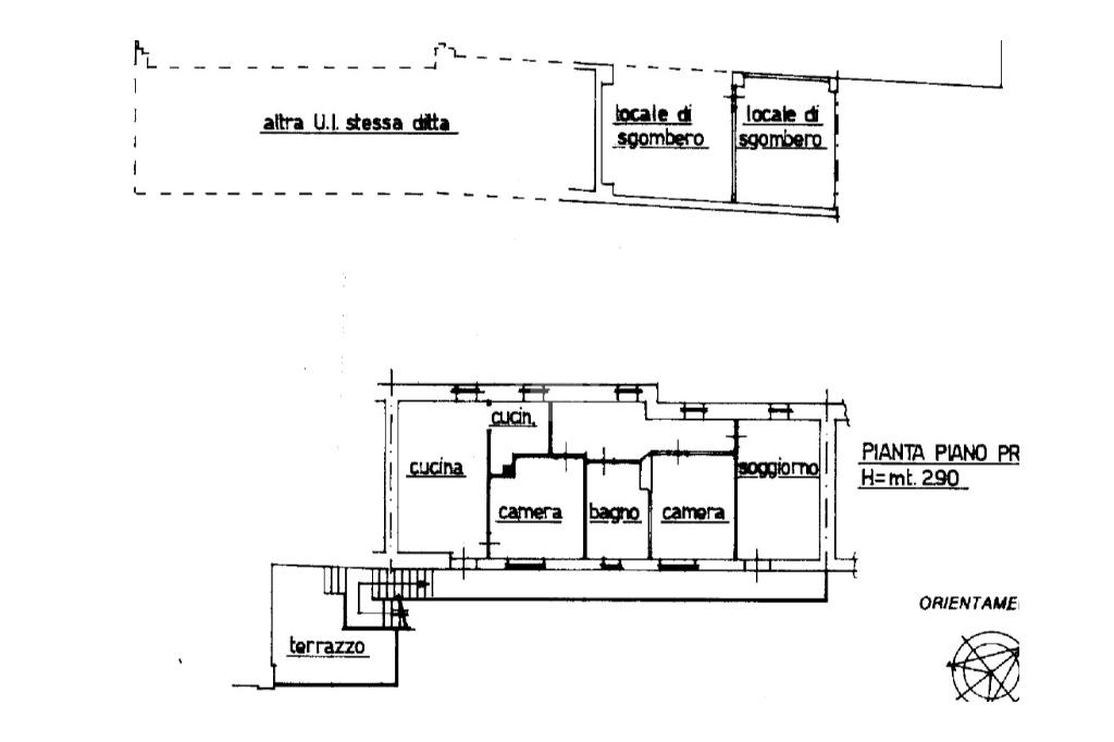
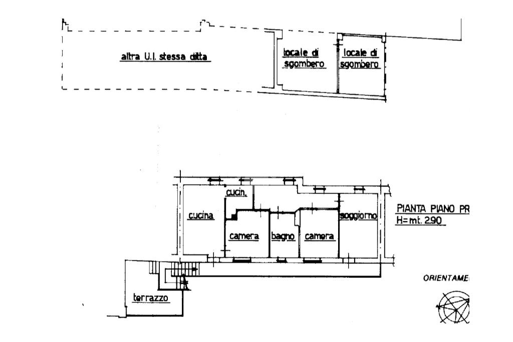
Al primo piano, il secondo alloggio: l’ingresso è direttamente sulla sala da pranzo separata dalla cucina abitabile e dal salotto. Le camere da letto matrimoniali sono due e il bagno è finestrato con vasca.

Completano la proprietà vari locali di sgombero, magazzino, forno a legna, posti auto e terreno di circa 800 mq.

Ampie possibilità di recupero.

Mostra tutto

Nelle vicinanze

Trasporto pubblico Trasporto pubblico
Carignano
Carignano
420 m
Rivalta (FIAT Rivalta-canc. 9)
Rivalta (FIAT Rivalta-canc. 9)
540 m
Ricariche auto elettriche Ricariche auto elettriche
EnelX FAST COOP Piossasco
2,2 Km
Scuole Scuole
Scuole
400 m
Istituto Istruzione Superiore "Amaldi-Sraffa"
2,4 Km
Asilo Nido
2,5 Km
Scuola Elementare Anna Frank
2,6 Km
Scuola Media Leonardo da Vinci
2,6 Km
Farmacia Farmacia
Farmacia
1,0 Km
Farmacia Comunale 2
2,6 Km
Farmacia Comunale 23
2,9 Km
Supermercati Supermercati
Supermercati
1,3 Km
Eurospin
1,6 Km
Carrefour
1,8 Km
Ipercoop
2,2 Km
Coop
2,5 Km
Negozi Negozi
Facit
1,4 Km
Culasso
2,6 Km
Piano Giovanni -Stock abbigliamento
2,7 Km
Bar Bar
Prabernasca Cafè
1,5 Km
Chimera
2,4 Km
Bar
2,6 Km
Ristoranti Ristoranti
osteria 68
2,0 Km
Pizza Fiorì
2,0 Km
Pizza Rock
2,4 Km
Pistrocchio
2,5 Km
Au chat qui rit
2,7 Km
Mostra tutto

Caratteristiche

Rif.:
61137347
Piano:
Basso di 1
Totale piani:
1
Posti auto:
2
Balconi:
1
Terrazzi:
1
Mostra tutto
Prezzo Prezzo
€ 249.000
Rata mutuo Rata mutuo
€ 1.173 / mese
Spese annue Spese annue
€ 0
Proponi il tuo prezzoProponi il tuo prezzo

Classe Energetica

G
G
G
G
G
G
G
G
G
EP globale non rinnovabile:
403.24 kW h/m² anno
EP globale rinnovabile:
403.24 kW h/m² anno
EP invernale del fabbricato:
EP estiva del fabbricato:
Anno di costruzione:
1967
Riscaldamento:
Autonomo
Tipo impianto:
A radiatori
Tipo alimentazione:
GPL

Ti interessa visionare l'immobile?

Fissa un appuntamento  Fissa un appuntamento

Richiedi informazioni

Clicca su Leggi per aprire l'informativa
* Questi campi sono obbligatori

Calcola il tuo mutuo

Semplice e senza impegno
Anticipo

( % )
Mutuo

( % )

pochi semplici passi

inserisci i tuoi dati
Questionario completato
Grazie per aver richiesto un appuntamento senza impegno con un nostro Consulente del Credito e Assicurativo.

Hai inserito correttamente tutti i dati necessari e a breve riceverai una e-mail con un link da convalidare per inviare i tuoi dati.
Affiliato
Studio Gerbole Sas
Via Giaveno, 65/a 10040 Rivalta Di Torino (TO)

Il nostro staff


  • Simone Gambini
    Affiliato

  • Matteo Bertone
    Collaboratore

  • Valeria Ghione
    Coordinatrice
Via Giaveno, 65/a 10040 Rivalta Di Torino (TO)
Zona: Gerbole di Rivalta
Mostra su mappa
Orari: dal lunedi al venerdi dalle 9:00 alle 12:30 e dalle 15:00 alle 20:00 sabato dalle 9:00 alle12:30 e dalle 15:00 alle 19:00
Affiliato
Studio Gerbole Sas
Via Giaveno, 65/a 10040 Rivalta Di Torino (TO)

2026 Tecnocasa Franchising S.p.A. - P. IVA 08365160152 - Via Monte Bianco 60/A 20089 Rozzano (MI). Ogni agenzia ha un proprio titolare ed è autonoma. Privacy policy | Policy utilizzo | Cookie policy